環鏈斗式提升機生產廠家報價
環鏈斗式提升機生產廠家-合理報價|型號|圖紙|推薦選型-提升機廠家直銷 整機質保1年 歡迎咨詢訂購 13353676726

環鏈斗式提升機
應用行業:煤、水泥、碎石、砂子、化肥、糧食適用物料:粉狀、粒狀、小塊狀物料
價格區間:1000-9000元/米 處理能力:2-200T/H
環鏈斗式提升機簡介
環鏈斗式提升機也可以叫做環鏈式斗式提升機,是環形料條帶動料斗提升物料的設備,是采用混合式或重力卸料,挖取式裝料的高效提升設備。
奧創生產的環鏈斗式提升機是牽引件用優質合金鋼高度圓環鏈。中部機殼分單、雙通道兩種形式為機內重錘箱恒力自動張緊。鏈輪采用可換輪緣組合式結構。使用壽命長,輪緣更換工作簡便。下部采用重力自動張緊裝置,能保持恒定的張緊力,避免打滑或脫鏈,同時料斗遇到偶然因素引起的卡殼現象時有一定的容讓性,能夠有效地保護下部軸等部件。 適用于輸送堆積密度小于1.5t/m3易于掏取的粉狀、粒狀、小塊狀的底磨琢性物料。如煤、水泥、碎石、砂子、化肥、糧食等。TH型斗式提升機用于各種散狀物料的垂直輸送。適用于輸送粉狀、粒狀、小塊狀物料,物料溫度在250℃以下。
奧創環鏈斗式提升機技術特點:
1.輸送量大,相同斗寬的TH型與HL型相比,輸送量增大近一倍。
2.采用了組裝式鏈輪。有輪體、輪緣用高強度螺栓聯接而成。在鏈輪磨損到一定程度后,可擰下螺栓,拆換輪緣,更換方便,且節約拆料、降低了維修費;
3.下部采用了重錘杠桿式張緊裝置,即可實現自動張緊。一次安裝后不需調整,又可以保持恒定的張緊力,從而保證機器的正常運轉,避免了打滑或脫鏈;
4.提升高度運行平穩可靠,噪音小,維護方便。
5.改進機型的提升輸送量比普通機型提高30%以上。
6.牽引件為低合金高強度園環鏈,經適當的熱處理后,具有很高的抗拉強度和耐磨性,使用壽命長。本提升機為混合或重力方式卸料,掏取式裝料,適用輸送堆積密度不大于1.5t/m3的物料的粉狀、粒狀、小塊狀的低磨琢性物料,物料的溫度不得超過250度。
環鏈斗式提升機參數
| 型 號 | TH160 | TH250 | TH315 | TH400 | TH500 | TH630 | TH800 | TH1000 | TH1250 | ||||||||||
| 料斗型式 | zh | sh | zh | sh | zh | sh | zh | sh | zh | sh | zh | sh | zh | sh | zh | sh | zh | sh | |
| 輸送能力,m 3 /h | 19 | 30 | 30 | 48 | 35 | 59 | 58 | 94 | 73 | 118 | 114 | 185 | 150 | 240 | 240 | 360 | 360 | 540 | |
| 料斗 | 料斗容量(l) | 1.2 | 1.9 | 3 | 4.8 | 3.75 | 6 | 5.9 | 9.5 | 9.3 | 15 | 14.6 | 23.6 | 24 | 38 | 38 | 60 | 60 | 95 |
| 斗距(mm) | 350 | 450 | 512 | 688 | 936 | 936 | 1001 | ||||||||||||
| 鏈條 | 園鋼直徑 x節(mm) | φ12X45 | φ18X64 | φ22X86 | φ24X86 | φ24X86 | φ28X92 | ||||||||||||
| 單鏈條破 斷強(KN) | ≥170 | ≥320 | ≥480 | ≥560 | ≥560 | ≥660 | |||||||||||||
| 料斗運動 速度 (m/s) | 1.3 | 1.2 | 1.4 | 1.5 | 1.6 | 1.6 | 1.6 | ||||||||||||
| 傳動鏈輪轉數 (r/min) | 62.5 | 46.8 | 42.5 | 37.6 | 35.8 | 31.8 | 30.5 | 30.5 | 28 | ||||||||||
| 輸送物料的塊度(mm) | 20 | 25 | 35 | 40 | 50 | 60 | 75 | 85 | 100 | ||||||||||
注釋:上表為TH型160、200、250型斗式提升機技術參數表,表中料斗容積為盛水容積,輸送量按此斗容計算時為填充。
1.表中斗容為計算斗容,輸送量按填充系數0.6計算得出。
2.TH型斗提機料斗用途:
Zh--中深斗:輸送濕粘性物料,如糖、濕細沙等。
Sh--深斗:輸送重的粉狀至小塊狀物料,如水泥、砂、煤等。
3.HL型斗提機料斗用途:
Q--淺園底料斗:輸送潮濕、易結塊、難拋出的物料,如濕沙、濕煤等。
S--深園底料斗:輸送干燥的、松散的、易拋出的物料,如水泥、煤塊、碎石等。
4.張緊力計算:
G=40+0.232·H
式中:Q--輸送量(t/h) H--提升高度(mm) G--張緊力(kg)
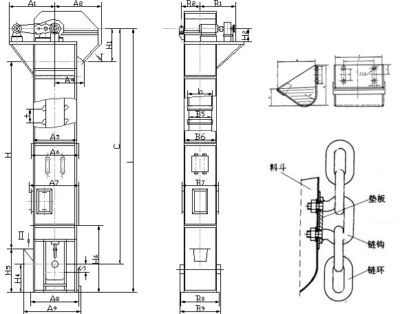
環鏈提升機結構圖紙

料斗把物料從下面的儲藏中舀起,隨著輸送帶或鏈提升到頂部,繞過頂輪后向下翻轉, 斗式提升機將物料傾入接受槽內。帶傳動的斗式提升機的傳動帶一般采用橡膠帶,裝在下或上面的傳動滾筒和上下面的改向滾筒上。鏈傳動的斗式提升機一般裝有兩條平行的傳動鏈,上或下面有一對傳動鏈輪,下或上面是一對改向鏈輪。斗式提升機一般都裝有機殼,以防止斗式提升機中粉塵飛揚。
環鏈斗式提升機圖片
安裝要求
1、 斗式提升機必須牢固地安裝在堅固的砼基礎上。砼基礎的表面應平整,并呈水平狀態,保證斗式提升機安裝后達到垂直要求。
高度較高的斗式提升機在其中部機殼和上部機殼的適當位置應與其相臨的建筑物(如料倉、車間等)連在一起以增加其穩定性。安裝時先安裝下部部件,固定地腳螺栓,然后安裝中部機殼,后安上部機殼。機殼安裝成功,校正垂直度。在全高上下用鉛直線測量,誤差應小于10mm。上下軸應平行,其軸心線應在同一平面內。
高度較低的斗式提升機安裝時,可以在地平面把上、中、下機殼全部連接并較正好,然后整體吊直固定在砼基礎上。
2、 機殼安裝好后,安裝鏈條及料斗。料斗鏈接用的U型螺絲,既是鏈條接頭,又是料斗的固定件。U型螺絲的螺母一定要扭緊并可靠防松。
3、 鏈條及料斗安裝好以后,進行適當張緊。
4、 給減速機及軸承座分別添加適當數量的機油和黃油。減速機用工業齒輪油潤滑。軸承座內用鈣基或鈉基黃油均可以。
5、 試運轉,安裝完成后即應進行空車試運轉??者\轉應注意:不能倒轉,不能有磕碰現象??者\轉不小于2小時,不應有過熱現象,軸承溫升不超過250C,減速機溫升不超過300C。空運轉2小時后,一切正常即可進行負荷試車。帶負荷試車時喂料應均勻,防止喂料過多,堵塞下部造成“悶車”。
維護事項
1、 斗式提升機應空負荷開車。所以每次停機前應排盡所有料斗內的物料,然后再停車。
2、 不能倒轉。倒轉即可能發生鏈條脫軌現象,排除脫軌故障很麻煩。
3、 均勻喂料。禁止突然增大喂料量。喂料量不能超過提升機的輸送能力。否則容易造成底部的物料堆積嚴重時發生“悶車”事故。
4、 及時適量補充潤滑油。
5、 鏈條和料斗嚴重磨損或損壞時應及時更換。
安全規程
1、提升機由指定人員進行維護和管理,電源開關箱的鑰匙由指定人員管理。
2、提升機必須有卷揚限制器和行程限位器,限制器應使滑輪在提升到距離卷筒或滑輪300mm以前時能自動停止。
3、 提升機應有負荷標志,在提升、降落時重量不許超負荷(1T)。
4、 送電后,檢查卷揚限制器、行程限位器、聯鎖開關等安全裝置,動作靈敏可靠,并進行試吊。
5、 起吊、降落前,鳴鈴示警后,方可開車。
6、 提升機決對不允許載人上、下。
7、工作完后,提升機吊盤應落地,然后切斷電源,關好上下護欄門。
8、 經常保持提升機周圍環境衛生。
斗式提升機廠家
河南奧創斗式提升機廠家是一家以物料提升機研發生產為主要營業范圍的廠家,可為粉末、冶金、化工、醫藥、礦山、建材、玻璃、食品、涂料、陶瓷、煤炭、石英砂等求購斗式提升機的廠家根據物料屬性提供垂直、皮帶、環鏈、板鏈斗式提升機的行業解決方案,其中包括斗式提升機結構圖紙繪畫、價格計算、廠家真機圖片展示,及到廠實地考察接待,歡迎實地考察!
訂購網址請登錄河南奧創機械有限公司官方網站:www.7878game.cn 24小時服務熱線:13353676726


