
環鏈斗式提升機簡介:
環鏈斗式提升機也可以叫做環鏈式斗式提升機,是環形料條帶動料斗提升物料的設備,是采用混合式或重力卸料,挖取式裝料的高效提升設備。
奧創生產的環鏈斗式提升機是牽引件用優質合金鋼高度圓環鏈。中部機殼分單、雙通道兩種形式為機內重錘箱恒力自動張緊。鏈輪采用可換輪緣組合式結構。使用壽命長,輪緣更換工作簡便。下部采用重力自動張緊裝置,能保持恒定的張緊力,避免打滑或脫鏈,同時料斗遇到偶然因素引起的卡殼現象時有一定的容讓性,能夠有效地保護下部軸等部件。 適用于輸送堆積密度小于1.5t/m3易于掏取的粉狀、粒狀、小塊狀的底磨琢性物料。如煤、水泥、碎石、砂子、化肥、糧食等。TH型斗式提升機用于各種散狀物料的垂直輸送。適用于輸送粉狀、粒狀、小塊狀物料,物料溫度在250℃以下。
設備技術特點視頻:
1.輸送量大,相同斗寬的TH型與HL型相比,輸送量增大近一倍。
2.采用了組裝式鏈輪。有輪體、輪緣用高強度螺栓聯接而成。在鏈輪磨損到一定程度后,可擰下螺栓,拆換輪緣,更換方便,且節約拆料、降低了維修費;
3.下部采用了重錘杠桿式張緊裝置,即可實現自動張緊。一次安裝后不需調整,又可以保持恒定的張緊力,從而保證機器的正常運轉,避免了打滑或脫鏈;
4.提升高度運行平穩可靠,噪音小,維護方便。
5.改進機型的提升輸送量比普通機型提高30%以上。
6.牽引件為低合金高強度園環鏈,經適當的熱處理后,具有很高的抗拉強度和耐磨性,使用壽命長。本提升機為混合或重力方式卸料,掏取式裝料,適用輸送堆積密度不大于1.5t/m3的物料的粉狀、粒狀、小塊狀的低磨琢性物料,物料的溫度不得超過250度。
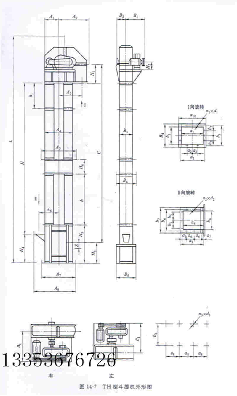
環鏈提升機結構圖紙:
選型參數對照表:
注釋:上表為TH型160、200、250型斗式提升機技術參數表,表中料斗容積為盛水容積,輸送量按此斗容計算時為填充。
1.表中斗容為計算斗容,輸送量按填充系數0.6計算得出。
斗提機安裝要求:
煤礦環鏈斗式提升機安裝要求
1、 斗式提升機必須牢固地安裝在堅固的砼基礎上。砼基礎的表面應平整,并呈水平狀態,保證斗式提升機安裝后達到垂直要求。
高度較高的斗式提升機在其中部機殼和上部機殼的適當位置應與其相臨的建筑物(如料倉、車間等)連在一起以增加其穩定性。安裝時先安裝下部部件,固定地腳螺栓,然后安裝中部機殼,后安上部機殼。機殼安裝成功,校正垂直度。在全高上下用鉛直線測量,誤差應小于10mm。上下軸應平行,其軸心線應在同一平面內。
高度較低的斗式提升機安裝時,可以在地平面把上、中、下機殼全部連接并較正好,然后整體吊直固定在砼基礎上。
2、 機殼安裝好后,安裝鏈條及料斗。料斗鏈接用的U型螺絲,既是鏈條接頭,又是料斗的固定件。U型螺絲的螺母一定要扭緊并可靠防松。
3、 鏈條及料斗安裝好以后,進行適當張緊。
4、 給減速機及軸承座分別添加適當數量的機油和黃油。減速機用工業齒輪油潤滑。軸承座內用鈣基或鈉基黃油均可以。
5、 試運轉,安裝完成后即應進行空車試運轉。空運轉應注意:不能倒轉,不能有磕碰現象??者\轉不小于2小時,不應有過熱現象,軸承溫升不超過250C,減速機溫升不超過300C??者\轉2小時后,一切正常即可進行負荷試車。帶負荷試車時喂料應均勻,防止喂料過多,堵塞下部造成“悶車”。
河南奧創斗式提升機廠家是一家以物料提升機研發生產為主要營業范圍的廠家,可為粉末、冶金、化工、醫藥、礦山、建材、玻璃、食品、涂料、陶瓷、煤炭、石英砂等求購斗式提升機的廠家根據物料屬性提供垂直、皮帶、環鏈、板鏈斗式提升機的行業解決方案,其中包括斗式提升機結構圖紙繪畫、價格計算、廠家真機圖片展示,及到廠實地考察接待,歡迎實地考察!
訂購網址請登錄河南奧創機械有限公司官方網站: www.7878game.cn 24小時服務熱線:13353676726